en
Ref. 85897461
6 rooms
201 m²
€459,000
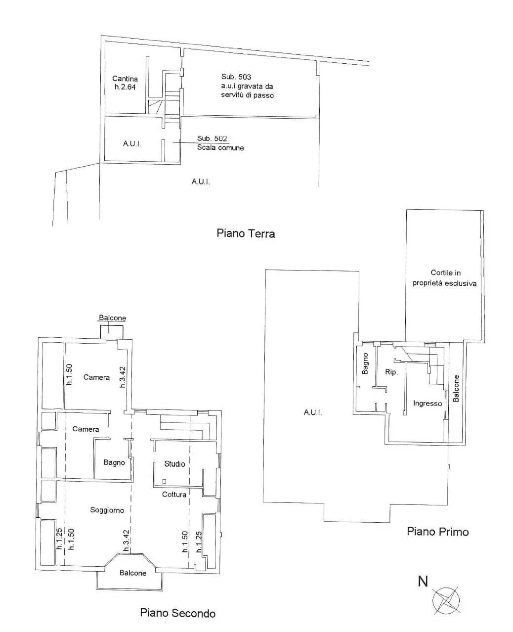
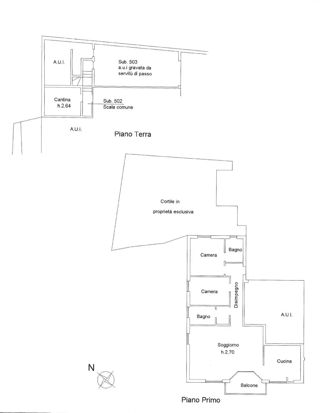
In a quiet and exclusive setting of only three units, we offer for sale a prestigious two-level penthouse boasting a spectacular 180° lake view.
A truly unique property, ideal for those seeking privacy, light, nature, and comfort, just a few minutes from the lakefront and local amenities.
On the first level, the entrance opens to a welcoming hall, a bedroom with en-suite shower, and a guest bathroom with laundry area.
The upper floor features the sleeping area with two spacious double bedrooms, one with a balcony, and a bathroom with a whirlpool bathtub.
A bright study and a large open-plan living area with kitchen open onto a furnished panoramic terrace, perfect for dining outdoors while enjoying breathtaking lake views.
The property includes access to a well-kept shared garden and a private entrance.
Additional features (sold together with the apartment):
Double garage with space for two cars and directly connected cellar (€ 30,000)
Outdoor parking space (€ 10,000)
An exclusive residence, ideal both as a primary home and as a luxury holiday retreat, offering unmatched views and tranquility.
No information available

+39 0332 511861+41 79 536 85 59
monika@talamonarealestate.com
This site is protected by reCAPTCHA and the Google Privacy Policy and Terms of Service apply.